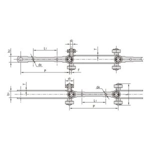
A corrente transportadora articulada dupla é o principal componente de tração do transportador suspenso com trilhos fechados leves.